NORDANGLIA FOSHAN SHCHOOL - aotu architecte - agence architecture à LyonNORDANGLIA FOSHAN SHCHOOL - aotu architecte - agence architecture à LyonNORDANGLIA FOSHAN SHCHOOL - aotu architecte - agence architecture à LyonNORDANGLIA FOSHAN SHCHOOL - aotu architecte - agence architecture à LyonNORDANGLIA FOSHAN SHCHOOL - aotu architecte - agence architecture à LyonNORDANGLIA FOSHAN SHCHOOL - aotu architecte - agence architecture à LyonNORDANGLIA FOSHAN SHCHOOL - aotu architecte - agence architecture à LyonNORDANGLIA FOSHAN SHCHOOL - aotu architecte - agence architecture à LyonNORDANGLIA FOSHAN SHCHOOL - aotu architecte - agence architecture à Lyon

NORDANGLIA FOSHAN SHCHOOL

NORDANGLIA FOSHAN SHCHOOL - aotu architecte - agence architecture à Lyon
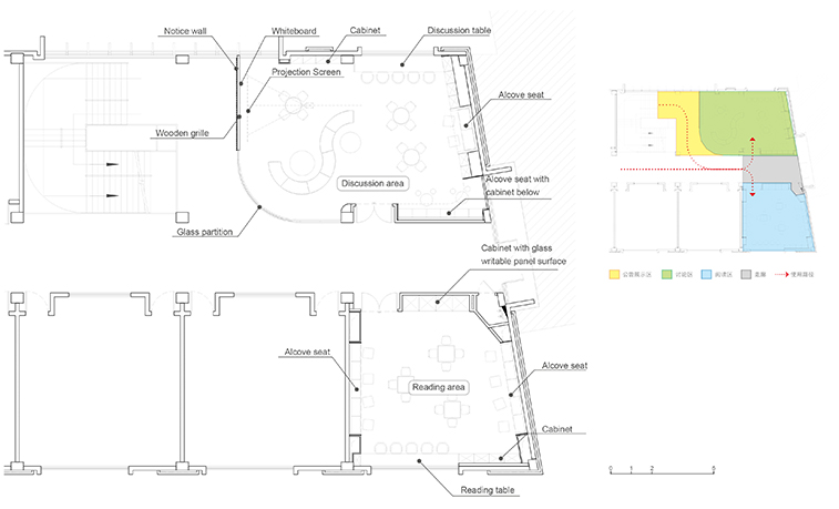
program junior middle school interior design
location Foshan, PR-CHINA
developer NORDANGLIA EDUCATION
architect aotu architecture office
surface 215m²
budget -
schedule concept 2020